Casa semindipendente in vendita

Caravino, via perosio
€ 48.000
3 locali 3 locali
80 Mq 80 Mq
1 bagno 1 bagno

Casa semindipendente in vendita

Caravino, via perosio

Descrizione annuncio

Nel cuore del comune di Caravino, proponiamo in vendita una casa semindipendente di 80 mq, ideale per chi cerca una soluzione abitativa su più livelli.

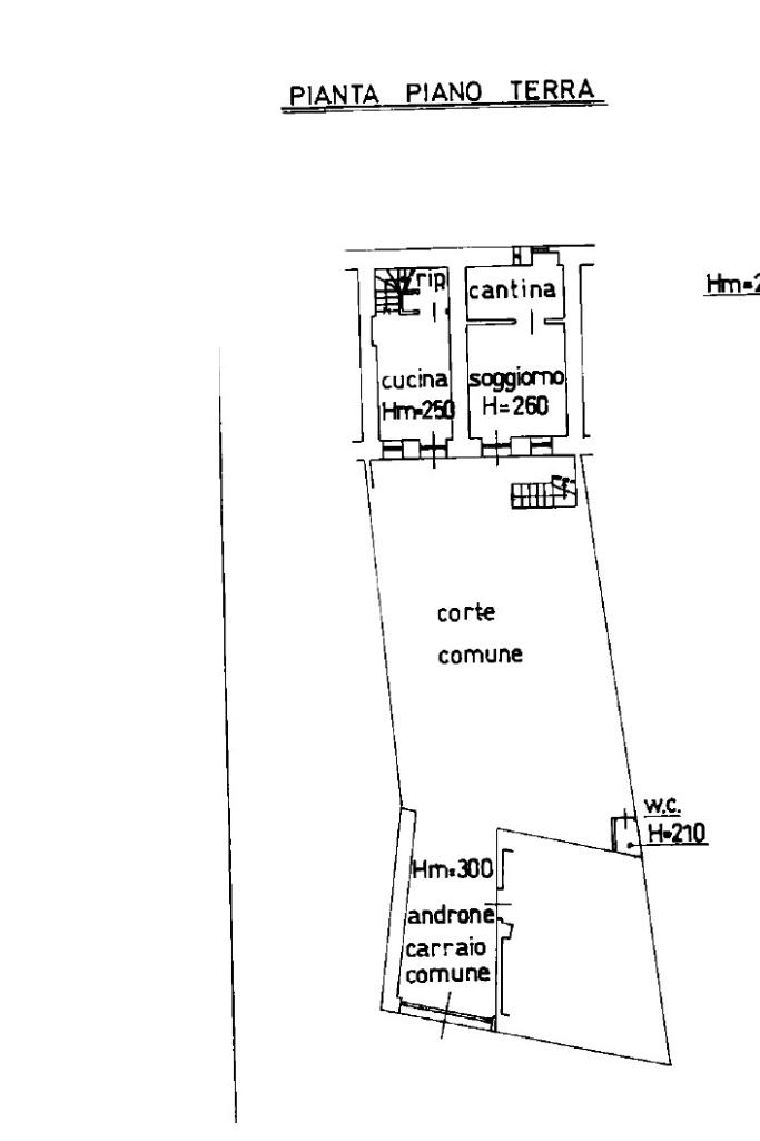
L'immobile, offre un ambiente di dimensioni modeste, accogliente e funzionale. Al piano terra, si trovano il soggiorno e la cucina abitabile, entrambi che si aprono sul cortile privato, perfetto per momenti di relax all'aperto.

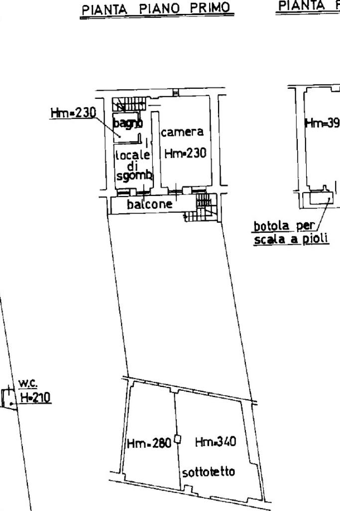
Al piano superiore, una camera da letto luminosa con accesso diretto al balcone, un bagno e un ulteriore locale da adibire a studio o cabina armadio.

Completano la proprietà un deposito, sfruttabile come box auto e il sottotetto al secondo ed ultimo piano dell'abitazione, attualmente allo stato grezzo.

Costruita nel 1967 e ristrutturata parzialmente negli anni 90.

La casa è inoltre dotata di aria condizionata per garantire comfort in ogni stagione.

Una soluzione abitativa che unisce praticità e tranquillità, immersa nel contesto sereno di Caravino.

Mostra tutto

Nelle vicinanze

Trasporto pubblico Trasporto pubblico
Caravino (p.le Carecchio)
Caravino (p.le Carecchio)
370 m
Caravino
Caravino
390 m
Ristoranti Ristoranti
Bar ristorante Masino
1,2 Km
Trattoria San Martin
2,9 Km
Mostra tutto

Caratteristiche

Rif.:
61139387
Piano:
2 di 2 (Piano su più livelli)
Box:
1
Posti auto:
2
Balconi:
1
Camere da letto:
1
Mostra tutto
Prezzo Prezzo
€ 48.000
Rata mutuo Rata mutuo
€ 228 / mese
Spese annue Spese annue
€ 1
Proponi il tuo prezzoProponi il tuo prezzo

Classe Energetica

G
G
G
G
G
G
G
G
G
EP invernale del fabbricato:
EP estiva del fabbricato:
Anno di costruzione:
1967
Riscaldamento:
Autonomo
Tipo impianto:
A stufa
Tipo alimentazione:
Metano

Ti interessa visionare l'immobile?

Fissa un appuntamento  Fissa un appuntamento

Richiedi informazioni

Clicca su Leggi per aprire l'informativa
* Questi campi sono obbligatori

Calcola il tuo mutuo

Semplice e senza impegno
Anticipo

( % )
Mutuo

( % )

pochi semplici passi

inserisci i tuoi dati
Questionario completato
Grazie per aver richiesto un appuntamento senza impegno con un nostro Consulente del Credito e Assicurativo.

Hai inserito correttamente tutti i dati necessari e a breve riceverai una e-mail con un link da convalidare per inviare i tuoi dati.
Affiliato
Studio Strambino Uno Sas
P.zza Don Luigi Vesco, 8 10019 Strambino (TO)

Il nostro staff


  • Riccardo Ronza
    Affiliato

  • Giulio Faletto
    Collaboratore

  • Shalom Maria Celeste Faure
    Affiliata

  • Sonia Pia Perri
    Coordinatrice
P.zza Don Luigi Vesco, 8 10019 Strambino (TO)
Zona: Strambino-Romano C.se-Mercenasco-Perosa C.se
Mostra su mappa
Affiliato
Studio Strambino Uno Sas
P.zza Don Luigi Vesco, 8 10019 Strambino (TO)

2026 Tecnocasa Franchising S.p.A. - P. IVA 08365160152 - Via Monte Bianco 60/A 20089 Rozzano (MI). Ogni agenzia ha un proprio titolare ed è autonoma. Privacy policy | Policy utilizzo | Cookie policy